物件の特徴
主な設備
公営水道
浄化槽
プロパンガス
個別プロパン
給湯
食品庫
コンロ三口
カウンターキッチン
システムキッチン
バス
ユニットバス
オートバス
バス1坪以上
追焚機能
浴室暖房
浴室乾燥機
浴室に窓
トイレ
トイレ2箇所
温水洗浄便座
室内洗濯機置場
洗髪洗面化粧台
洗面所独立
室内物干機
照明器具
ダウンライト
省エネ給湯器
ディンプルキー
モニタ付インターホン
火災警報器/報知機
LDK15畳以上
LDK18畳以上
2面採光
全室2面採光
複層ガラス
全居室複層ガラス
フローリング
24時間換気システム
網戸
クローゼット
クローゼット2箇所
クローゼット3箇所
ウォークインクローゼット
ウォークインクローゼット2箇所
床下収納
全居室収納
シューズボックス
バルコニー
ワイドバルコニー
主な特徴
前道6m以上
緑豊かな住宅地
閑静な住宅街
山が見える
田園風景
陽当り良好
2階建
外壁サイディング
長期優良住宅
建築確認完了検査済証
新築
増改築設計図書
即入居可
フラット35Sに対応
物件概要
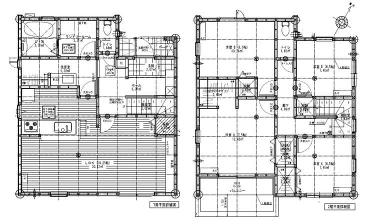
| 価格 | 2,480万円 | 間取り | 4LDK |
|---|---|---|---|
| 物件種別 | 新築一戸建て | ||
| 所在地 | 広島県東広島市高屋町高屋堀 2 | ||
| アクセス | JR山陽本線『西高屋』 車6分(約2.6km) 『下堀バス停』 徒歩4分 (約320m) |
||
| 建物面積 | 112.19㎡ | 駐車場 | あり 普通:2台 |
| 築年月 | 2026年(令和8年)02月予定 | 建築確認 | |
| 建物構造 | 木造 2階建 | 工法 | |
| 主要採光 | 南東向 | バルコニー | |
| 保証・評価 | 長期優良住宅認定通知書 |
||
| 分譲情報 | |||
| 土地面積 | 166.08㎡(50.23坪) | 接道 | 北西側(公道)幅 約6.0m |
| 私道 | セットバック | ||
| 地目 | 宅地 | 地勢 | |
| 権利 | 所有権 |
||
| 都市計画 | 調整区域 |
用途地域 | 指定無 |
| 建ぺい/容積率 | 60% / 200% | 土地国土法 | |
| 許可番号 | 【開発】指令東広開市指(開宅)第28号 | 建築基準法 | |
| 法令制限 | |||
| 小学区 | 高美が丘小学校 徒歩20分 (約1600m) | 中学区 | 高美が丘中学校 徒歩23分 (約1800m) |
| 現況 | 完工済 | 引渡 | 即 |
| その他費用 | |||
| 備考 | 設計・建設性能評価取得 耐震等級3 フラット35S(金利Aプラン) 地盤保証20年 主要構造部分35年住宅保証システム(有償修繕工事継続による) 引渡後無料点検実施(6ヶ月・2年・5年・10年の計4回) |
||
| 物件番号 | 4396482 | 取引態様 | 媒介 |
値下げ物件





















